Hiszpania
Residencial Santa Clara
Residencial Santa Clara is situated in a privileged location in the municipality of Chiclana de la Frontera, very close to the Barrosa Beach and with excellent connections to the city of Cádiz and Jeréz de la Frontera.
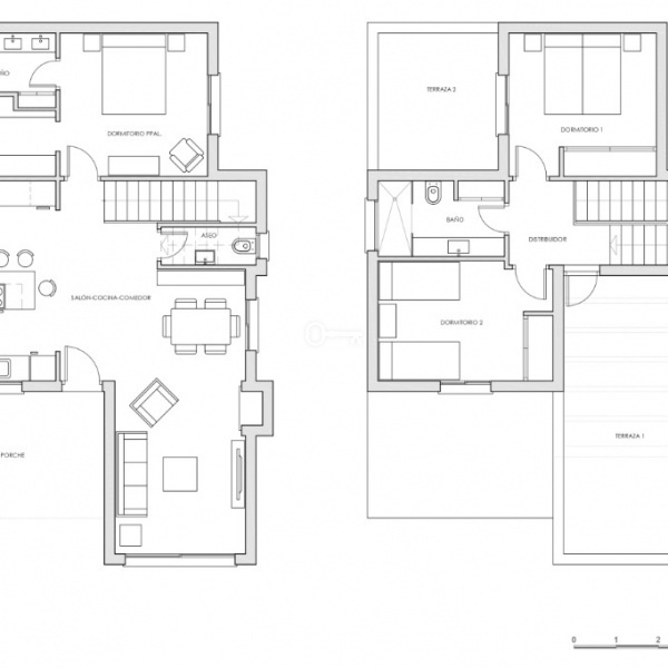
Detached single-family house. It consists of living – dining room, kitchen, 3 bedrooms, 1 dressing room, 1 toilet, and 2 bathrooms, has a porch on the first floor and two terraces, one of them partially open on the upper floor.
HOUSING AND INSULATION:
- External enclosures to the Capuchina (perforated solid brick wall + cavity + partition ) with Thermal Insulation with Projected Polyurethane Foam.
- The external openings will be closed with aluminium joinery with thermal break, glazed with double glazing with watertightness, wind permeability and wind resistance according to project calculations. .
- Interior partitions of double hollow bricks of 5 or 7 cm.
- Inverted flat roofs, with the formation of slopes, meetings with parameters and drains, waterproofing by means of asphalt membrane, geotextile sheet for thermal insulation protection by means of extruded polystyrene and finishing, which depending on the area will be executed with gravel for accessible installations and with fixed flooring for those that are visible.
FOUNDATION AND STRUCTURE:
Foundations, to be justified by the corresponding study. geotechnical, which in principle is foreseen by means of isolated footings braced under pillars. Reinforced concrete columns and one-way floor slabs of reinforced joists with flat reinforced concrete frames, all in accordance with EHE-2008 and CTE DB-SE regulations.
FLOOR COVERINGS, CEILINGS AND WALLS:
- Printed concrete exterior paving in access walkways and vehicle traffic areas.
- Porcelain ceramic tile flooring throughout the interior of the house with skirting board and skirting board of the same material.
- Access staircase to upper floor made of the same material.
- Tile with a decorative border in bathrooms or similar.
- Smooth plaster false ceilings in all rooms painted in smooth plaster.
- In bathrooms where air-conditioning pre-installation is located, the false ceiling will be removable for cleaning air-conditioning machinery.
- Interior walls: perlite plaster and plaster on brick masonry and plaster smooth.
- Exterior walls: waterproofed fine coat rendering and smooth Elastomeric paint.
- Ceramic tiles.
- Interior walls: perlite rendering and plastering on brickwork and smooth plaster.
CARPENTRY:
- Wooden doors lacquered in white with handles and white with handles and locks.
- Reinforced entry gate.
- Locks and bolts made of solid galvanised and painted with synthetic enamel paint on stair railings.
- Anti-vandal shutters for safety motorized or safety vandal glass.
OTHERS:
- Pre-installation of air conditioning through ducts.
- Ventilation installation according to CTE DB-HS
- Installation of conventional swimming pool with skimmers for chlorinated water, with gresite-lined pool shell, including 2 LED spotlights. – Outdoor shower and filter house installed.
- Both the building and the adjoining installations will comply with the minimum insulation requirements for energy saving according to CTE DB-HE, for health and safety CTE DB-HS, for fire safety CTE DB-SI, for safety in use CTE DB-SU and for noise protection CTE DB-HR.
- The facility will be fully accessible, both the main building and its annexed installations and urban development, according to Decree 293/2009, of 7 July, which approves the regulations governing the rules for accessibility in infrastructure, urban planning, building and transport in Andalusia and the CTE DB SUA.
Offer no: 28668
The above proposal is not a commercial offer within the meaning of the law but is for information purposes. Partners International Sp. z o.o. makes every effort to ensure that the content presented in our offers is current and reliable. Data on offers was obtained on the basis of statements of the sellers.



















