Lisboa, Lisboa, Estrela

  • Area 121
  • Rooms 2
  • Construction year 2025
  • Apartment For sale

970 000 EUR

8 044 EUR / m²

Lisboa, Lisboa, Estrela

Apartment Lisboa Estrela

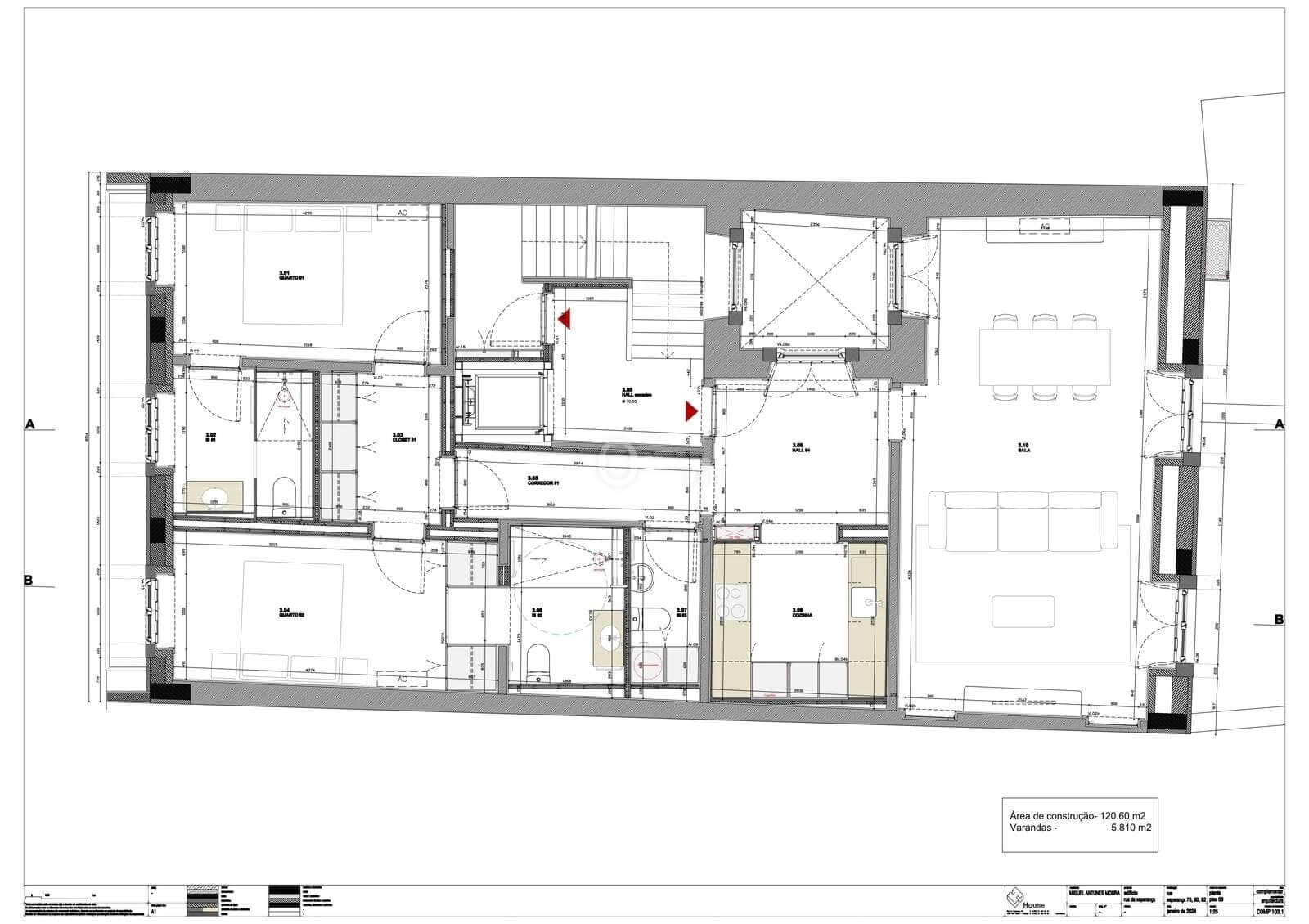
2 bedroom apartment, with unique characteristics, in a building that is integrated in the Urban Rehabilitation Detail Plan of Madragoa (PPRUM). This area is considered Central Space and Residential of Consolidated Urban Plan A and is within an Archaeological Potential Area of Level 111, as per the current PDM (Municipal Director Plan).
The building has a five-story volume, being this apartment located in the 3rd.
The building, fully renovated, maintains the Pombaline physiognomy of the main façade and, in the interiors, in the distribution and circulation areas, we find well-preserved traces of the decorative elements from that period, namely the Pombaline-patterned and polychrome tile coverings, wooden ceilings, of the “skirt and shirt” type, and window designs.
This apartment in particular, counts on an excellent 120,6 sqm private gross area. Its area comprises an ample lounge with view to the garden, a fully equipped kitchen, a social bathroom and two suites that benefit from balconies with an area of 5.8 sqm, serving the entire front of the building (facing south).
This is a unique opportunity to live in one of the most prestigious and exclusive areas of the city, in a building that preserves the charm of 19th-century architecture while accommodating the comfort of a modern project that respects the architectural heritage of the time.
Benefiting from a privileged location, the building is just a 2 minutes´ walk from the upcoming Santos Subway station, close to various bus stops, and within walking distance of emblematic landmarks in the area, such as the São Bento Palace, the Lisbon School of Economics and Management of the University of Lisbon and renowned restaurants and local business.
Book your visit and fall in love with your next home in Estrela.

Additional data
  • Elevator

Offer no: PF36720

The above proposal is not a commercial offer within the meaning of the law but is for information purposes. Partners International Sp. z o.o. makes every effort to ensure that the content presented in our offers is current and reliable. Data on offers was obtained on the basis of statements of the sellers.

About the property

    Please be advised that the placement of information on real estate by Partners International in the database requires the processing of your personal data. Sending this information by you is tantamount to agreeing to the processing of personal data. Therefore, we would like to inform you that:

    The data administrator is Partners International Sp. z o.o. Your data will be used to maintain the possibility of contacting you; you have the right to access the data content and the right to amend it; providing data is voluntary.

    Offers

    Stay updated

    Our 30 years of experience, a rich offer, extensive customer base and efficiency have allowed us to enter the real estate market as a leader among real estate agencies in Warsaw, known for exceptional service and unique solutions. Join our subscription list to receive only selected content and offers from our catalog.

    At Partners International, we provide services based on trust – our customers can be sure that their data is processed securely. Please be advised that the placement of information on real estate by Partners International in the database requires the processing of your personal data. Sending this information by you is tantamount to agreeing to the processing of personal data. You will find the Personal Data Protection Policy document here.