Warszawa, Wawer, Płowiecka

  • Area 1 948
  • Type Object
  • Floor 1 / 2
  • Rooms 21
  • Construction year 1804
  • Commercial object For sale

10 000 000 PLN

5 133 PLN / m²

Warszawa, Wawer, Płowiecka

Restaurant and hotel building | **** | Wawer

RESTAURANT AND HOTEL BUILDING

Historic inn | Standard **** | Plot with an area of 3616 m2 | Possibility of development and expansion | The building is entered into the register of monuments

*****

BUILDING AND STANDARD:

The historic inn, operating as a **** hotel facility, is located in the front part of a picturesque plot with an area of 3,616 m2. Its remaining part has been adapted for parking for guests.

The building was built between 1804 and 1866. Later on, it has been renovated and expanded to the current area of 1,948 m2.

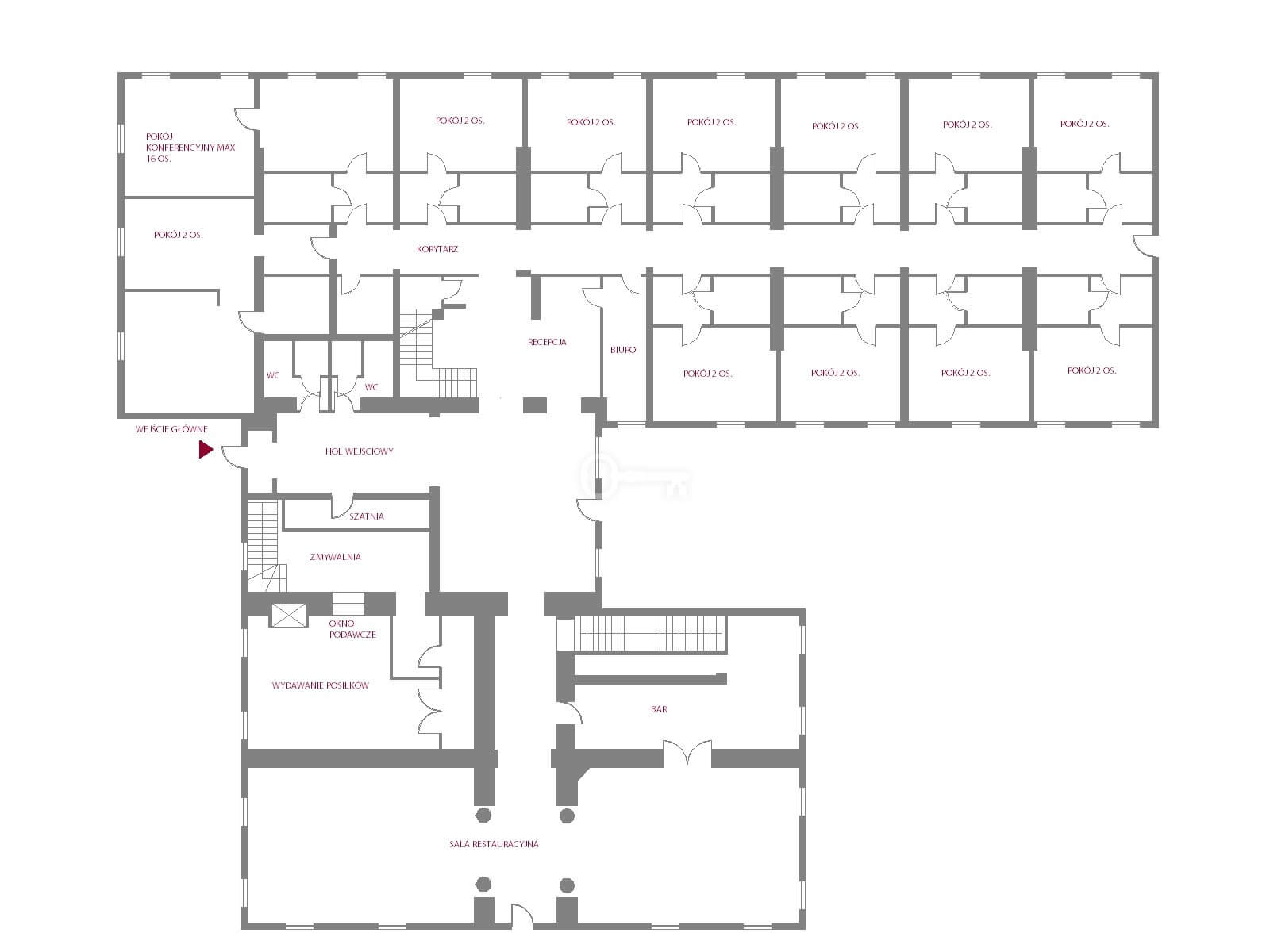
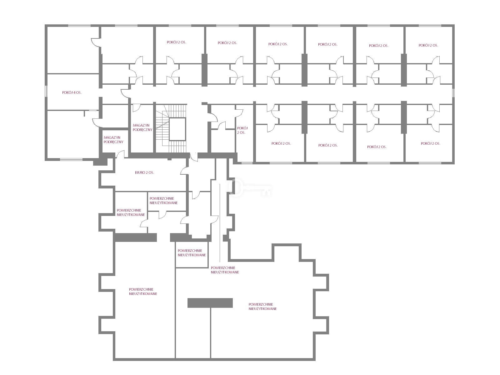
The building has a restaurant, 21 rooms, and 3 apartments. 

Basement:
* coffeehouse,
* boiler room,
* laundry room,
* drying room,
* two warehouses,
* cold storage,
* two utility rooms,
* kitchen,
* restaurant room.

Ground floor:
* ten rooms with bathrooms,
* one two-room apartment with a bathroom,
* reception,
* restaurant,
*bar.

First floor:
* eleven rooms with bathrooms,
* two two-room apartments with bathrooms,
* warehouse,
*office,
* one residential apartment with kitchen and bathroom.

LOCATION:

Wawer is a district that guarantees its residents peace, comfort of life, and access to green areas. Wawer is dominated by low buildings. In addition to numerous single-family houses, you will also find old wooden villas in the Świdermajer style, typical of these areas at the turn of the 19th and 20th centuries.
Due to the health values of the Wawer, many medical facilities are located here, including the well-known Children’s Health Center and the Institute of Cardiology. 

ADDITIONAL INFORMATION:

The offer price is the net price.

The following utilities are connected to the building:
* Electricity – from the municipal network,
* water supply and sewage system from the municipal network,
* Gas network – own.

I cordially invite you to the presentation!

Additional data
  • Gas: Yes
  • Water: Yes
  • Current: Yes
  • Sewerage: Yes
  • Forest: Yes
  • Park: Yes
  • Bus: Yes
  • Hospital nearby: Yes
  • Grocery nearby: Yes

Offer no: 203407

The above proposal is not a commercial offer within the meaning of the law but is for information purposes. Partners International Sp. z o.o. makes every effort to ensure that the content presented in our offers is current and reliable. Data on offers was obtained on the basis of statements of the sellers.

About the property

    Please be advised that the placement of information on real estate by Partners International in the database requires the processing of your personal data. Sending this information by you is tantamount to agreeing to the processing of personal data. Therefore, we would like to inform you that:

    The data administrator is Partners International Sp. z o.o. Your data will be used to maintain the possibility of contacting you; you have the right to access the data content and the right to amend it; providing data is voluntary.

    Stay updated

    Our 30 years of experience, a rich offer, extensive customer base and efficiency have allowed us to enter the real estate market as a leader among real estate agencies in Warsaw, known for exceptional service and unique solutions. Join our subscription list to receive only selected content and offers from our catalog.

    At Partners International, we provide services based on trust – our customers can be sure that their data is processed securely. Please be advised that the placement of information on real estate by Partners International in the database requires the processing of your personal data. Sending this information by you is tantamount to agreeing to the processing of personal data. You will find the Personal Data Protection Policy document here.