Śródmieście, Śródmieście Południowe, Wiejska

  • Area 182
  • Type Commercial premises
  • Rooms 11
  • Construction year 1946
  • Commercial object For rent

25 000 PLN

138 PLN / m²

Śródmieście, Śródmieście Południowe, Wiejska

Premises with entrance from the street | Excellent location

SERVICE PREMISES IN PRESTIGIOUS DOWNTOWN LOCATION

Wiejska Street | Neighborhood of Plac Trzech Krzyży | Window from the street | Excellent access to infrastructure and public transportation 

*****

PROPERTY:

The subject of the sale are two adjacent window premises.

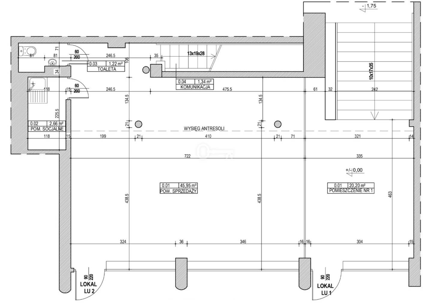
The first space is the premises where a well-known and frequented by a multitude of book lovers bookstore operates. The space is 66 sqm + a mezzanine (about 12 sqm), which currently serves as a small warehouse for the bookstore.

The second interior is a unit with a loft-like atmosphere, with an area of about 180 sq m. The property has undergone a major renovation – all the installations necessary for business have been installed – air conditioning, ventilation, electrical and alarm systems, fire escape routes have been marked. The premises consist of an entrance hall, 2 open – space areas (with an area of 40 sq m and 80 sq m) In addition, three toilets and a part for arranging a kitchenette.

BUILDING:

The tenement was designed by arch. Waclaw Weker in the functionalist style of the 1930s. The building on Wiejska Street was erected in 1935-1939. The facades and staircases of the tenement were faced with marble and sandstone blocks, while the structure of the building is a “reinforced concrete and steel skeleton with infill and solid brick masonry steel columns” (Arch. Kubicki). Floors in the building are ceramic in the store space and concrete in the basement.

LOCATION:

The property is located in one of Warsaw’s most famous locations – on Wiejska Street, adjacent to the Sejm, the President’s Chancellery, Trzech Krzyży Square and many embassies. The area is home to many prestigious boutiques, studios, iconic cafes and restaurants.

The quartet of streets is adjacent to vast downtown green areas, including Ujazdowski Park, Łazienki Królewskie, Agrykola, and the Botanical Garden.

The advantage of the location is excellent communication with the center of Warsaw. Both convenient access by public transport and by car are possible. Numerous bus stops are located nearby.

I invite you to the presentation!

Additional data
  • Park: Yes
  • Bus: Yes
  • Grocery nearby: Yes
Location

Śródmieście Południowe

It is surrounded by Chałubińskiego Street, Jerozolimskie Avenue, Stefan Batory Street, and Ujazdowskie Avenue. The division into Southern and Northern Śródmieście stems from the historical division of the city center. It is a beautiful architectural gem with an abundance of green spaces. Southern Śródmieście is one of the few areas that has preserved most of Warsaw’s original late 19th- and early 20th-century buildings. This part of the city began to develop in the second half of the 19th century, when mainly tall luxury tenement houses were built here, most of which have been restored and continue to delight the eye to this day.

Offer no: 347374

The above proposal is not a commercial offer within the meaning of the law but is for information purposes. Partners International Sp. z o.o. makes every effort to ensure that the content presented in our offers is current and reliable. Data on offers was obtained on the basis of statements of the sellers.

About the property

Piotr Sor

Senior Real Estate Advisor

    Please be advised that the placement of information on real estate by Partners International in the database requires the processing of your personal data. Sending this information by you is tantamount to agreeing to the processing of personal data. Therefore, we would like to inform you that:

    The data administrator is Partners International Sp. z o.o. Your data will be used to maintain the possibility of contacting you; you have the right to access the data content and the right to amend it; providing data is voluntary.

    Offers

    Stay updated

    Our 30 years of experience, a rich offer, extensive customer base and efficiency have allowed us to enter the real estate market as a leader among real estate agencies in Warsaw, known for exceptional service and unique solutions. Join our subscription list to receive only selected content and offers from our catalog.

    At Partners International, we provide services based on trust – our customers can be sure that their data is processed securely. Please be advised that the placement of information on real estate by Partners International in the database requires the processing of your personal data. Sending this information by you is tantamount to agreeing to the processing of personal data. You will find the Personal Data Protection Policy document here.