Wola, Mirów, Żelazna

  • Area 200
  • Type Office
  • Floor 7 / 7
  • Rooms 7
  • Construction year 2016
  • Commercial object For rent

20 645 PLN

103 PLN / m²

Wola, Mirów, Żelazna

Modern office | Daszyńskiego Roundabout

EXCELLENTLY CONNECTED OFFICE SPACE NEAR THE DASZYŃSKI ROUNDABOUT

Bright interiors | Separate offices and conference rooms | Fiber optics | Balcony | Air conditioning

*****

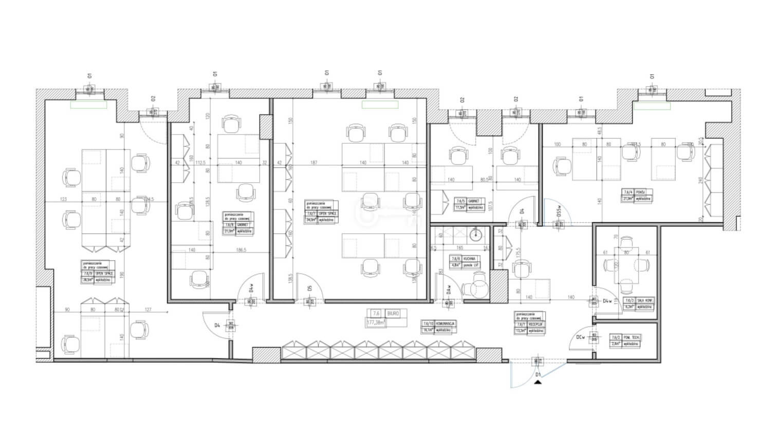
ROOM LAYOUT:

* Two large rooms for 8 people,
* room for 5 people,
* room for 4 people,
* two conference rooms – for 4 and 8 people,
* kitchenette,
* reception area,
* technical room,
* balcony.

STANDARD:

Modern offices following a complete renovation of the building in 2020, available immediately, designed with attention to work comfort and interior aesthetics.

Each module is fully prepared for use:
* furnished workstations,
* high-quality carpeting,
* energy-efficient LED lighting,
* complete ICT infrastructure.

The space is air-conditioned and ventilated – individual settings are possible.

The office has its own entrance to the balcony, which contributes to the comfort of everyday work.

Each level of the building has shared toilets and shower facilities, which are popular with people who commute by bike.

A spacious underground car park is also available for users, guaranteeing convenience and security.

A representative lobby and glass entrances to individual offices with a control system.

LOCATION:

The property is located near Rondo Daszyńskiego and has excellent transport links. Bus and tram stops and the metro are right next door. Full infrastructure in the vicinity, including the Norblin Factory and Warsaw Brewery, grocery stores, and service outlets.

ADDITIONAL INFORMATION:

Commercial terms:
* Rent: PLN 78 / sqm / month / net.
* Service charges: PLN 25 / sqm / month / net.

Additional fees:
* Internet + logo: PLN 599 / month / net.
* Underground parking: PLN 699 / spot / net.
* Ground parking: PLN 599 / spot / net.
* Electricity charged according to individual consumption.
* 2-month deposit gross.

Please feel free to contact me for additional information and to arrange a viewing!

Additional data
  • Furnishings
  • Underground parking: 1
  • Reception: Yes
  • Monitoring: Yes
  • Elevator
  • Adapted: Yes
  • Condition: very good
  • Bus: Yes
  • Subway: Yes
  • Tram: Yes
  • Pharmacy nearby: Yes
  • Primary school nearby: Yes
  • Grocery nearby: Yes

Offer no: 388108

The above proposal is not a commercial offer within the meaning of the law but is for information purposes. Partners International Sp. z o.o. makes every effort to ensure that the content presented in our offers is current and reliable. Data on offers was obtained on the basis of statements of the sellers.

About the property

    Please be advised that the placement of information on real estate by Partners International in the database requires the processing of your personal data. Sending this information by you is tantamount to agreeing to the processing of personal data. Therefore, we would like to inform you that:

    The data administrator is Partners International Sp. z o.o. Your data will be used to maintain the possibility of contacting you; you have the right to access the data content and the right to amend it; providing data is voluntary.

    Stay updated

    Our 30 years of experience, a rich offer, extensive customer base and efficiency have allowed us to enter the real estate market as a leader among real estate agencies in Warsaw, known for exceptional service and unique solutions. Join our subscription list to receive only selected content and offers from our catalog.

    At Partners International, we provide services based on trust – our customers can be sure that their data is processed securely. Please be advised that the placement of information on real estate by Partners International in the database requires the processing of your personal data. Sending this information by you is tantamount to agreeing to the processing of personal data. You will find the Personal Data Protection Policy document here.