Málaga, Mijas, Mijas

  • Lot For sale

395 000 EUR

Málaga, Mijas, Mijas

Plot or Land for sale in Mijas

Your dream home can be here!
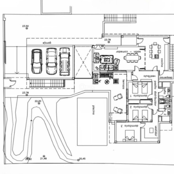
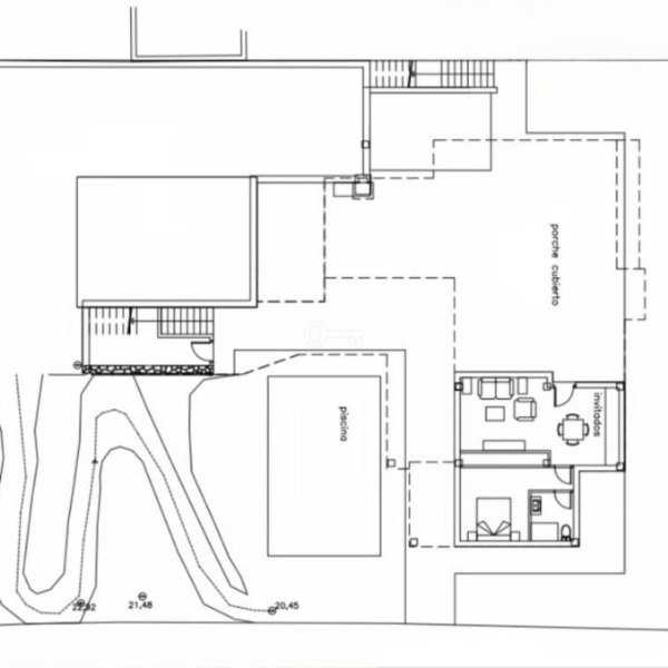
Urban plot with more than 800 square meters of land and qualified with 35% buildability, to build one or two houses of 280 square meters, with two floors, parking and swimming pool.
Unbeatable location, just 2 km from the train station and Los Boliches beach, close to shops, pharmacies, schools, gas station, bus stop, restaurants and large supermarkets such as Aldi, Lidl, Cash Fresh, The Food Co. Supermarket, and also its easy access to the highway connects Marbella and Malaga quickly and easily. A privileged area within reach of the whole family.
Imagine building your project in a quiet environment, surrounded by neighbors who value quality of life. This plot, sunny most of the day, with clear views, is surrounded by charming homes, offering a cozy atmosphere and a pleasant neighborhood environment.
Do you dare to build your next residential project here and materialize your ideas? Contact me to explore this space and discover the potential it offers for your next home.

Offer no: R4956133

The above proposal is not a commercial offer within the meaning of the law but is for information purposes. Partners International Sp. z o.o. makes every effort to ensure that the content presented in our offers is current and reliable. Data on offers was obtained on the basis of statements of the sellers.

About the property

    Please be advised that the placement of information on real estate by Partners International in the database requires the processing of your personal data. Sending this information by you is tantamount to agreeing to the processing of personal data. Therefore, we would like to inform you that:

    The data administrator is Partners International Sp. z o.o. Your data will be used to maintain the possibility of contacting you; you have the right to access the data content and the right to amend it; providing data is voluntary.

    Offers

    Stay updated

    Our 30 years of experience, a rich offer, extensive customer base and efficiency have allowed us to enter the real estate market as a leader among real estate agencies in Warsaw, known for exceptional service and unique solutions. Join our subscription list to receive only selected content and offers from our catalog.

    At Partners International, we provide services based on trust – our customers can be sure that their data is processed securely. Please be advised that the placement of information on real estate by Partners International in the database requires the processing of your personal data. Sending this information by you is tantamount to agreeing to the processing of personal data. You will find the Personal Data Protection Policy document here.