Stare Miasto, Śródmieście, Stępkarska

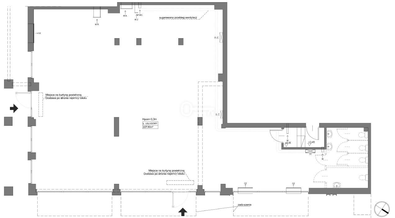
  • Area 228
  • Type Commercial premises
  • Rooms 1
  • Construction year 2027
  • Commercial object For sale

4 328 200 PLN

19 000 PLN / m²

Stare Miasto, Śródmieście, Stępkarska

Business premises on the new boulevard on the Motlawa River

LARGE COMMERCIAL UNIT IN A NEW DEVELOPMENT ON THE MOTŁAWA RIVER BOULEVARD

Premises for own fit-out | Luxury riverside development on the Motława | Modern architecture | Industrial character | New district close to the historic city centre | Developer standard (completion: 2027)

*****

PROJECT DESCRIPTION & LOCATION:

A brand-new residential complex is being developed right on the Motława River, at Stępkarska and Wiosny Ludów Streets – in Młode Miasto (Young City) – one of the most exciting areas of Gdańsk. It’s a modern revitalization of former shipyard grounds, combining industrial heritage with urban lifestyle. Restaurants, shops, and services are just around the corner, and it takes only a few minutes to walk to the Old Town and the Museum of the Second World War

Along the river, between the buildings and the waterfront, an elegant pedestrian and cycling boulevard is planned, enriched with thoughtfully designed greenery and artistic elements highlighting the unique character of this location. The ground floors will feature commercial and gastronomic premises – restaurants and cafés – bringing vibrancy and energy to the area. As a result, an attractive, publicly accessible space for leisure and social interaction will be created, adding new value to the city.

ADDITIONAL INFORMATION:

* Ceiling height: 330 cm.
* The listed price is exclusive of VAT.

You are warmly invited to a viewing!

Location

Śródmieście

Śródmieście is a district, part of which forms the most representative area of Gdańsk. Among the city’s districts, Śródmieście stands out for its wealth of culturally significant heritage sites, and its waterfront location has played a major role in its development over the centuries. The Dead Vistula, the Old Motława, the New Motława, the so-called Motława Moat, the Radunia Canal, and the Na Stępce Canal attracted craft workshops and industrial plants for centuries, while the water worked for Gdańsk and also served as part of its defense system. Today, a sign of the changing use of the waterways is the development of marinas, harbors, and water tram stops in Śródmieście. To the delight of residents and tourists alike, the water is taking on a recreational character. Śródmieście, with an area of 5.65 square kilometers, consists of eleven historic units, each with its own distinct character.
Investment: Nowa Wałowa

Nowa Wałowa

New exclusive housing estate with a boulevard on the Motława. Atractive location in the new centre of Gdańsk.The new housing estate is being built on the Motława itself at Stępkarska and Wiosny Ludów Streets – in the Young City – one of the most interesting parts of Gdańsk. It is…

Offer no: 949019

The above proposal is not a commercial offer within the meaning of the law but is for information purposes. Partners International Sp. z o.o. makes every effort to ensure that the content presented in our offers is current and reliable. Data on offers was obtained on the basis of statements of the sellers.

About the property

    Please be advised that the placement of information on real estate by Partners International in the database requires the processing of your personal data. Sending this information by you is tantamount to agreeing to the processing of personal data. Therefore, we would like to inform you that:

    The data administrator is Partners International Sp. z o.o. Your data will be used to maintain the possibility of contacting you; you have the right to access the data content and the right to amend it; providing data is voluntary.

    Stay updated

    Our 30 years of experience, a rich offer, extensive customer base and efficiency have allowed us to enter the real estate market as a leader among real estate agencies in Warsaw, known for exceptional service and unique solutions. Join our subscription list to receive only selected content and offers from our catalog.

    At Partners International, we provide services based on trust – our customers can be sure that their data is processed securely. Please be advised that the placement of information on real estate by Partners International in the database requires the processing of your personal data. Sending this information by you is tantamount to agreeing to the processing of personal data. You will find the Personal Data Protection Policy document here.