Málaga, Manilva, Manilva

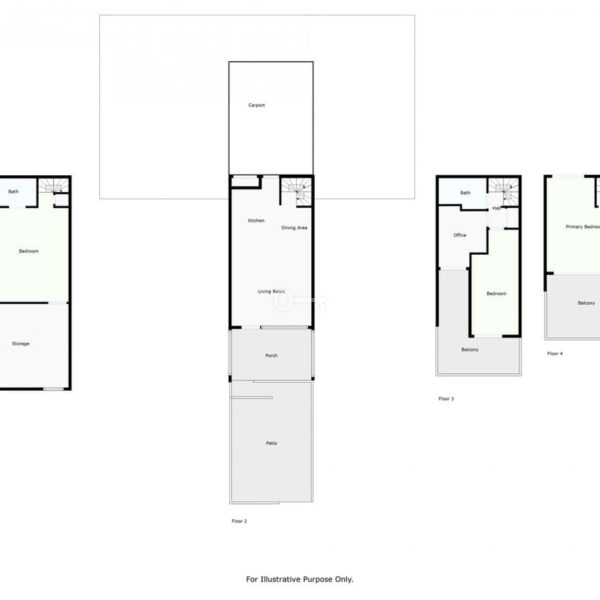
  • Area 135
  • Rooms 3
  • House For sale

335 000 EUR

2 482 EUR / m²

Málaga, Manilva, Manilva

3 bedrooms Townhouse for sale in Manilva

Charming townhouse for sale in La Duquesa, Costa del Sol. This beautiful property offers 135 m² built, with 3 spacious bedrooms and 2 bathrooms, making it an ideal home for families or a perfect second residence by the sea.
The house is in excellent condition and ready to move into. It features a bright living room with direct access to a private terrace, a fully equipped kitchen, and a master bedroom with en-suite bathroom and fitted wardrobes. High-quality finishes, double glazing and WiFi connection add to the comfort of this property.
Outside, the home boasts several terraces, both covered and uncovered, with stunning panoramic views of the sea and the mountains. The gated community offers a communal swimming pool, shared gardens and free parking within the complex, ensuring both security and convenience.
For year-round comfort, the property has hot and cold air conditioning installed. All basic utilities, such as electricity and drinking water, are available.
Located close to golf courses, the marina, the beach, the town center and all essential services, this property enjoys a prime location to experience everything the Costa del Sol has to offer: leisure, dining, sports and relaxation.
This is a contemporary-style home, perfect for permanent living or unforgettable holidays on the Costa del Sol.

Additional data
  • Swimming pool
  • Garden

Offer no: R5305489

The above proposal is not a commercial offer within the meaning of the law but is for information purposes. Partners International Sp. z o.o. makes every effort to ensure that the content presented in our offers is current and reliable. Data on offers was obtained on the basis of statements of the sellers.

About the property

    Please be advised that the placement of information on real estate by Partners International in the database requires the processing of your personal data. Sending this information by you is tantamount to agreeing to the processing of personal data. Therefore, we would like to inform you that:

    The data administrator is Partners International Sp. z o.o. Your data will be used to maintain the possibility of contacting you; you have the right to access the data content and the right to amend it; providing data is voluntary.

    Offers

    Stay updated

    Our 30 years of experience, a rich offer, extensive customer base and efficiency have allowed us to enter the real estate market as a leader among real estate agencies in Warsaw, known for exceptional service and unique solutions. Join our subscription list to receive only selected content and offers from our catalog.

    At Partners International, we provide services based on trust – our customers can be sure that their data is processed securely. Please be advised that the placement of information on real estate by Partners International in the database requires the processing of your personal data. Sending this information by you is tantamount to agreeing to the processing of personal data. You will find the Personal Data Protection Policy document here.