Málaga, Manilva, Manilva

  • Area 142
  • Rooms 3
  • House For sale

395 000 EUR

2 782 EUR / m²

Málaga, Manilva, Manilva

3 bedrooms Townhouse for sale in Manilva

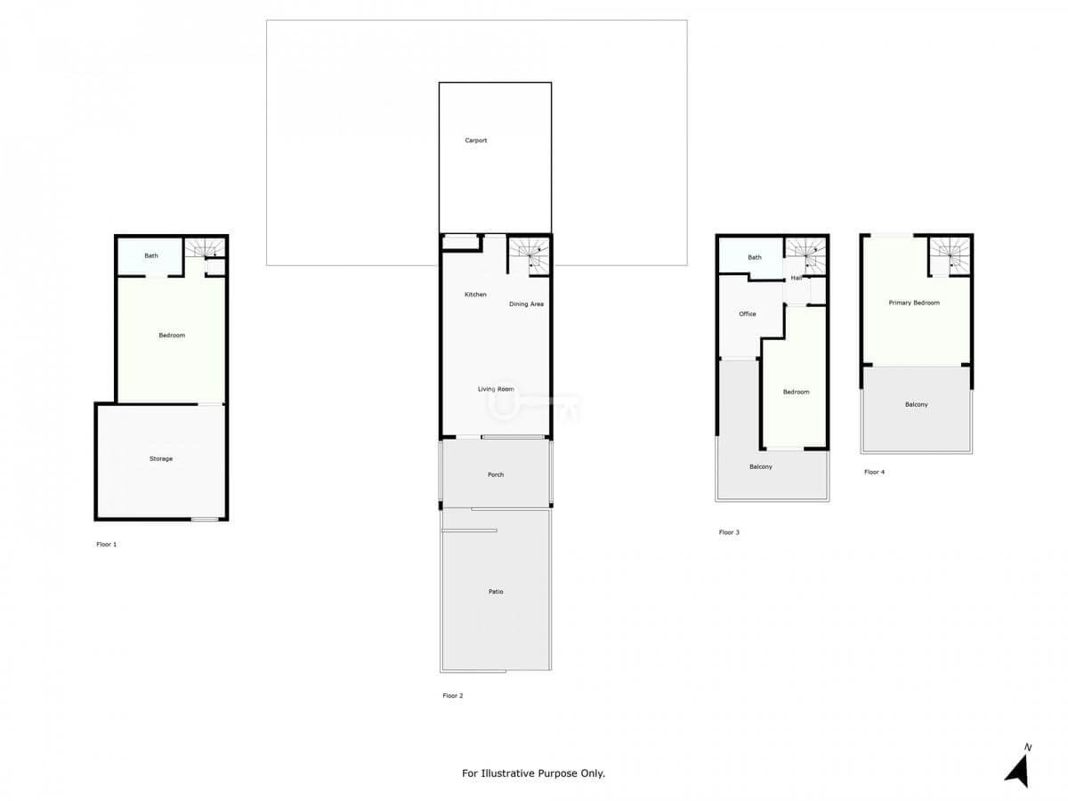
Town House for sale in , Manilva with 3 bedrooms, 2 bathrooms and with orientation south/east, with communal swimming pool, private garage (1 parking spaces) and private garden. Regarding property dimensions, it has 142 m² built and 25 m² terrace. Has the following facilities front line beach, amenities near, transport near, air conditioning, fully furnished, fully fitted kitchen, utility room, marble floors, basement, security entrance, double glazing, guest toilet, private terrace, living room, covered terrace, gated community, garden view, beach side, close to children playground, close to sea / beach, close to golf, uncovered terrace, games room, glass doors, balcony, excellent condition, recently renovated / refurbished, close to shops, close to town, pets allowed, partial sea views, direct sea access and close to restaurants.

Additional data
  • Swimming pool
  • Garden

Offer no: R5338093

The above proposal is not a commercial offer within the meaning of the law but is for information purposes. Partners International Sp. z o.o. makes every effort to ensure that the content presented in our offers is current and reliable. Data on offers was obtained on the basis of statements of the sellers.

About the property

    Please be advised that the placement of information on real estate by Partners International in the database requires the processing of your personal data. Sending this information by you is tantamount to agreeing to the processing of personal data. Therefore, we would like to inform you that:

    The data administrator is Partners International Sp. z o.o. Your data will be used to maintain the possibility of contacting you; you have the right to access the data content and the right to amend it; providing data is voluntary.

    Offers

    Stay updated

    Our 30 years of experience, a rich offer, extensive customer base and efficiency have allowed us to enter the real estate market as a leader among real estate agencies in Warsaw, known for exceptional service and unique solutions. Join our subscription list to receive only selected content and offers from our catalog.

    At Partners International, we provide services based on trust – our customers can be sure that their data is processed securely. Please be advised that the placement of information on real estate by Partners International in the database requires the processing of your personal data. Sending this information by you is tantamount to agreeing to the processing of personal data. You will find the Personal Data Protection Policy document here.