pomorskie, Sopot, 23 Marca

  • Area 135
  • Type Commercial premises
  • Rooms 1
  • Construction year 2024
  • Commercial object For sale

1 896 788 PLN

14 083 PLN / m²

pomorskie, Sopot, 23 Marca

Commercial premises | Office | Services | Sopot Górny

APARTMENTS NESTLED IN THE FOREST

Sopot Przylesie | Forest Neighbourhood | Security | Rooftop Terrace for Residents | Last Available Units

*****

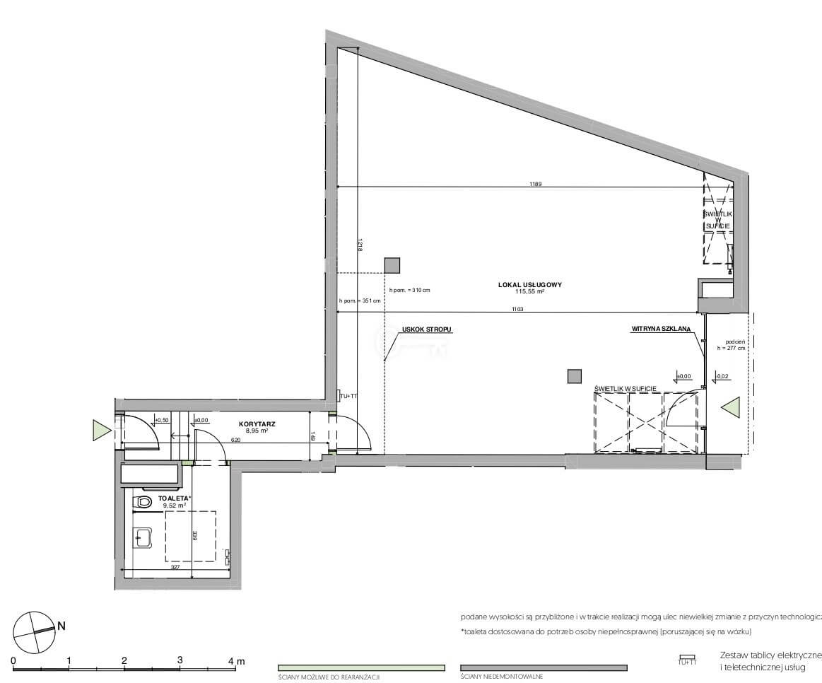
ROOM LAYOUT:

* Commercial unit located on the ground floor of the development with social facilities.

INVESTMENT DESCRIPTION:

A new, impressive development nestled in greenery has been built in the immediate vicinity of the Sopot Forests. A cascading structure from four to seven floors, featuring a rooftop terrace for residents on the top level, close to public transport, shops, and most importantly — a quiet and peaceful area away from the tourist buzz of Sopot.

LOCATION:

Przylesie is the northern district of Sopot, situated in a narrow valley surrounded by forested hills, offering full infrastructure including shops and service points, public transport, and beautiful cycling and running paths leading to the Sopot Forests and the city centre. Distance from the Sopot Pier — up to thirty minutes on foot, 8 minutes by bike.

ADDITIONAL INFORMATION:

* The listed price is a net price. VAT must be added to the price.
* https://cordiapolska.pl/

Feel free to contact us!

Additional data
  • Condition: building shell
Investment: Leśna Sonata

Leśna Sonata

Offer no: 234881

The above proposal is not a commercial offer within the meaning of the law but is for information purposes. Partners International Sp. z o.o. makes every effort to ensure that the content presented in our offers is current and reliable. Data on offers was obtained on the basis of statements of the sellers.

About the property

Piotr Haaza

Real Estate Advisor

    Please be advised that the placement of information on real estate by Partners International in the database requires the processing of your personal data. Sending this information by you is tantamount to agreeing to the processing of personal data. Therefore, we would like to inform you that:

    The data administrator is Partners International Sp. z o.o. Your data will be used to maintain the possibility of contacting you; you have the right to access the data content and the right to amend it; providing data is voluntary.

    Stay updated

    Our 30 years of experience, a rich offer, extensive customer base and efficiency have allowed us to enter the real estate market as a leader among real estate agencies in Warsaw, known for exceptional service and unique solutions. Join our subscription list to receive only selected content and offers from our catalog.

    At Partners International, we provide services based on trust – our customers can be sure that their data is processed securely. Please be advised that the placement of information on real estate by Partners International in the database requires the processing of your personal data. Sending this information by you is tantamount to agreeing to the processing of personal data. You will find the Personal Data Protection Policy document here.