Andalusia, Málaga, Los arqueros

  • Powierzchnia 97
  • Pokoje 2
  • Apartament Na sprzedaż

425 000 EUR

4 382 EUR / m²

Andalusia, Málaga, Los arqueros

2 bedrooms Ground Floor Apartment for sale in Los Arqueros

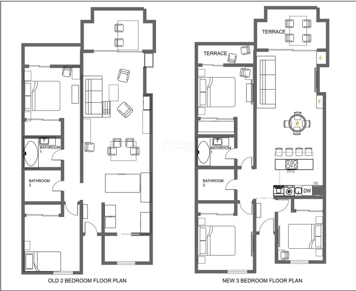
2-Bedroom Apartment with Panoramic Sea Views and 3-Bedroom Conversion Potential Puerto del Almendro, Los Arqueros
Set in an elevated position within the sought-after community of Puerto del Almendro in Los Arqueros, this bright two-bedroom apartment enjoys breathtaking panoramic sea views stretching across the Mediterranean coastline. The urbanisation is renowned for its beautifully maintained gardens and one of the most charming pool areas in the area, offering stunning sea views and a peaceful atmosphere.
Inside, the apartment is filled with natural light and offers a comfortable layout that is ready to move into immediately, while also presenting an excellent renovation opportunity for buyers looking to personalise the space.
The property features:
2 spacious bedrooms
2 en-suite bathrooms
Bright living and dining area
Fully fitted kitchen
Air conditioning (hot & cold)
Two independent private terraces, each with a unique orientation and spectacular sea views
Step-free access for added convenience
The dual terraces are a standout feature, allowing you to enjoy sunshine throughout the day while taking in uninterrupted panoramic sea views from different perspectives.
In addition to being a comfortable home as it stands, the apartment also offers excellent potential for renovation and reconfiguration. With the appropriate redesign, the property can potentially be converted into a 3-bedroom apartment, creating additional value and flexibility for future owners. Concept plans illustrating this 3-bedroom conversion are included in the photo gallery.
Located just minutes from San Pedro, Puerto Banús, golf courses, international schools, and all amenities, this property offers the perfect balance between tranquility and accessibility.
Whether you are looking for:
A permanent residence
A luxury second home
A superb renovation project with strong value potential
Or a high-demand investment in Benahavís
The perfect blend of existing value and future potential, in one of the most sought-after communities on the Costa del Sol.
Contact us today for more details!

Nr oferty: R5306479

Przedstawiona wyżej propozycja nie jest ofertą handlową w rozumieniu przepisów prawa lecz ma charakter informacyjny. Partners International Sp. z o.o. dokłada starań, aby treści przedstawione w naszych ofertach były aktualne i rzetelne. Dane dotyczące ofert uzyskano na podstawie oświadczeń sprzedających.

O nieruchomość

    Informujemy, że umieszczenie przez Partners International informacji o nieruchomości w bazie danych wiąże się z koniecznością przetwarzania Pani / Pana danych osobowych. Wysłanie przez Panią / Pana niniejszej informacji jest równoznaczne z wyrażeniem zgody na przetwarzanie danych osobowych. W związku z tym informujemy, że:

    Administratorem danych jest Partners International Sp. z o.o. Pani / Pana dane będą wykorzystane w celu utrzymania możliwości kontaktowania się z Panią / Panem; ma Pani / Pan prawo dostępu do treści danych oraz prawo do ich poprawiania; podanie danych jest dobrowolne.

    Bądź na bieżąco

    Nasze 30-letnie doświadczenie, bogata oferta, obszerna baza Klientów oraz skuteczność pozwoliły nam wpisać się w rynek nieruchomości jako lider wśród agencji zajmujących się obrotem nieruchomościami premium w Warszawie, znany z wyjątkowej obsługi i unikatowych rozwiązań. Dołącz do naszej bazy, aby otrzymywać od nas tylko wyselekcjonowane treści i oferty z naszego portfolio.

    W Partners International świadczymy usługi oparte na zaufaniu – nasi Klienci mogą mieć pewność, że ich dane są przetwarzane w bezpieczny sposób. Informujemy, że umieszczenie przez Partners International informacji o nieruchomości w bazie danych wiąże się z koniecznością przetwarzania Pani / Pana danych osobowych. Wysłanie przez Panią / Pana niniejszej informacji jest równoznaczne z wyrażeniem zgody na przetwarzanie danych osobowych. Dokument Polityki Ochrony Danych Osobowych znajdziesz tutaj.