Lisboa, Lisboa, São bento
Apartment Lisboa São bento
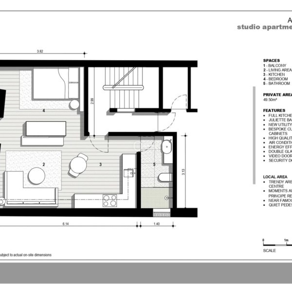
Ten apartament typu studio o powierzchni 49,5 m² jest doskonałą okazją dla inwestorów poszukujących nieruchomości o udowodnionej wysokiej rentowności, zlokalizowanej w centralnej i wysoko cenionej części Lizbony.
Zaledwie kilka minut od Chiado, Príncipe Real, Santos i kultowego tramwaju 28, mieszkanie znajduje się przy cichej, wyłączonej z ruchu kołowego ulicy, na 1. piętrze małego tradycyjnego budynku z wyłożoną kafelkami fasadą, w pełni odnowionego i dobrze wyposażonego.
Dzięki nowoczesnemu designowi i wysokiej jakości wykończeniom, przestrzeń ta jest idealna zarówno na krótkie, jak i długie pobyty, oferując komfort i wyrafinowanie. Bliskość głównych atrakcji turystycznych, restauracji i transportu publicznego czyni tę nieruchomość jeszcze bardziej atrakcyjną.
Kluczowe cechy obejmują:
Wysokie sufity: Zapewniają poczucie przestrzeni i jasności.
Wysokiej jakości wykończenia: Starannie zaprojektowane detale tworzące nowoczesne i eleganckie otoczenie.
Klimatyzacja: Zapewnia komfort przez cały rok.
Okna z podwójnymi szybami: Oferują doskonałą izolację termiczną i akustyczną, zapewniając ciszę i spokój.
Szafki i szuflady wykonane na zamówienie: Dopasowane rozwiązania maksymalizujące przechowywanie i styl.
Wyposażona kuchnia z urządzeniami Bosch: Wysoka funkcjonalność i energooszczędność.
Łazienka: Wysokiej jakości wykończenia, podgrzewane wieszaki na ręczniki i prysznic ze strumieniem deszczowym.
Wideodomofon: Zwiększa bezpieczeństwo i wygodę mieszkańców.
Drzwi antywłamaniowe: Zapewniają dodatkową ochronę.
Obecnie działający jako wynajem krótkoterminowy o udowodnionej wysokiej rentowności, ten apartament typu studio jest w doskonałym stanie i jest sprzedawany w pełni umeblowany i wyposażony. Istnieje również możliwość zakupu górnej jednostki z balkonem, która również działa jako wynajem krótkoterminowy o podobnych cechach i wysokiej rentowności.
Lizbona, stolica Portugalii, jest miejscem, w którym wszystko się dzieje: od historycznych dzielnic po tętniące życiem nowe ulice, Lizbona to miasto, które nigdy nie przestaje zaskakiwać. Możesz spacerować po kultowych alejach, takich jak Avenida da Liberdade lub skosztować pysznych pastéis de Belém, nie wspominając o opcjach kulturalnych miasta i licznych muzeach. Jest to miejska oaza, która przemawia do miłośników portugalskich brukowanych uliczek i tych, którzy są ciekawi nowoczesności.
Porta da Frente Christies to agencja nieruchomości, która działa na rynku od ponad dwóch dekad, koncentrując się na najlepszych nieruchomościach i inwestycjach zarówno na sprzedaż, jak i wynajem. Firma została wybrana przez prestiżową Christies International Real Estate do reprezentowania Portugalii w regionach Lizbony, Cascais, Oeiras i Alentejo. Główną misją Porta da Frente Christies jest zapewnienie doskonałej obsługi wszystkim naszym klientom.
Nr oferty: PF36504
Przedstawiona wyżej propozycja nie jest ofertą handlową w rozumieniu przepisów prawa lecz ma charakter informacyjny. Partners International Sp. z o.o. dokłada starań, aby treści przedstawione w naszych ofertach były aktualne i rzetelne. Dane dotyczące ofert uzyskano na podstawie oświadczeń sprzedających.





































