pomorskie, Gdańsk, Jasień

  • Powierzchnia 195
  • Powierzchnia działki 346
  • Sypialnie 4
  • Pokoje 6
  • Rok budowy 2025
  • Dom Na sprzedaż

2 490 000 PLN

12 765 PLN / m²

pomorskie, Gdańsk, Jasień

Kameralne osiedle w spokojnej lokalizacji

TRZYPOZIOMOWY ŚRODKOWY SEGMENT POŁOŻONY NA KAMERALNYM NOWOCZESNYM OSIEDLU USYTUOWANY 500M OD GRANICY TRÓJMIEJSKIEGO PARKU KRAJOBRAZOWEGO

Garaż Na Trzy Auta |
Ekologiczne Rozwiązania | Duże Ogrody | Rekuperacja | Ogrzewanie Podłogowe | Dodatkowe Wyciszenie Ścian | Blisko Natury | 500m Od Ściany Lasu 

Idealna propozycja dla osób, które szukają domu o optymalnym metrażu i bardzo dobrym układzie funkcjonalnym, położonym na prężnie rozwijającej i doskonale skomunikowanej z resztą miasta nowoczesnej dzielnicy.

*****

INFORMACJE O NIERUCHOMOŚCI:

Komfortowy dom typu segment o powierzchni 195 m2 usytuowany na działce 346 m2, z sześcioma pokojami, trzema łazienkami, spiżarnią oraz garażem dla trzech  samochodów. Całość zaopatrzona w przestronny ogród o ekspozycji zachodniej.

 
UKŁAD FUNKCJONALNY:

W skład trzech kondygnacji i powierzchni 195m2 wchodzą:

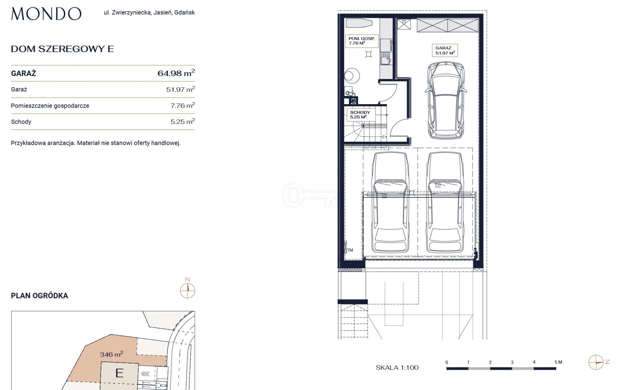
1. Garaż Pow. Łączna 64,98 m2
* Garaż (51,97m2),
* pomieszczenie gospodarcze (7,76m2),
* schody (5,25m2).

2. Parter Pow. Łączna 66,45 m2
* Pokój dzienny z aneksem kuchennym (37,27m2),
* pokój (9,75m2),
* łazienka (4,13m2),
* korytarz (2,86m2),
* schody (3,55m2),
* wiatrołap (8,89m2).

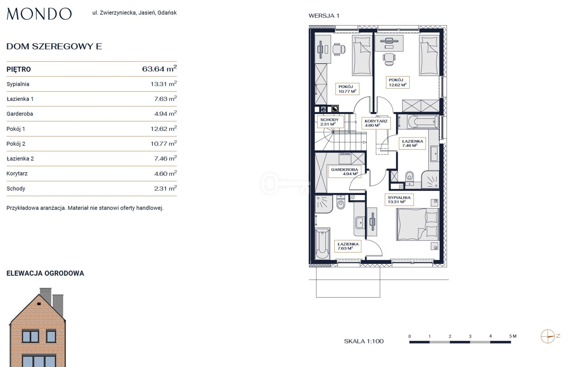
3. I Piętro Pow. Łączna 63,64m2
* Sypialnia I (13,31m2),
* łazienka (7,63m2),
* garderoba (4,94 m2),
* sypialnia II (12,62m2),
* sypialnia III (10,77m2),
* łazienka II (7,46m2),
* korytarz (4,60m2),
* schody (2,31m2).

STANDARD:

Standard deweloperski do indywidualnego wykończenia. Dokładny standard wykończenia (konstrukcja, wykończenie, instalacje) zostanie przesłany wraz z ofertą.

OSIEDLE / INWESTYCJA:

Zespół budynków mieszkalnych jednorodzinnych w zabudowie bliźniaczej, szeregowej i wolnostojącej stanowiący 14 niskich niepodpiwniczonych budynków o dwóch kondygnacjach nadziemnych mieszkalnych i poddaszu nieużytkowym oraz 5 budynków w zabudowie szeregowej dwóch kondygnacjach nadziemnych mieszkalnych i poddaszu nieużytkowym.

LOKALIZACJA:

Gdańsk Jasień to dynamicznie rozwijająca się dzielnica, która łączy nowoczesną infrastrukturę z bliskością natury. Doskonale skomunikowana z resztą miasta oraz szybkiemu dostępowi do Obwodnicy Trójmiasta, zapewnia wygodę codziennego życia. Okolica oferuje liczne tereny zielone, w tym malownicze Jezioro Jasień i ścieżki spacerowe, które sprzyjają aktywnemu wypoczynkowi. Na miejscu znajdują się również nowoczesne szkoły, przedszkola, sklepy oraz punkty usługowe, co czyni Jasień dzielnicą kompletną i przyjazną rodzinom. Mieszkańcy tego miejsca cieszą się spokojem, komfortem oraz bliskością wszystkiego, czego na co dzień potrzebują.

Zapraszam Na Prezentację!
Dodatkowe dane
  • Jasna kuchnia: Tak
  • Umeblowanie: Nie
  • Balkon: 1
  • Garaż: 2
  • Ogród: 1
  • Materiał dachu: dachówka betonowa
  • Stan: deweloperski
  • Gaz: Tak
  • Woda: Tak
  • Prąd: Tak
  • Kanalizacja: Tak
  • Las: Tak
  • Jezioro: Tak

Nr oferty: 213834

Przedstawiona wyżej propozycja nie jest ofertą handlową w rozumieniu przepisów prawa lecz ma charakter informacyjny. Partners International Sp. z o.o. dokłada starań, aby treści przedstawione w naszych ofertach były aktualne i rzetelne. Dane dotyczące ofert uzyskano na podstawie oświadczeń sprzedających.

O nieruchomość

    Informujemy, że umieszczenie przez Partners International informacji o nieruchomości w bazie danych wiąże się z koniecznością przetwarzania Pani / Pana danych osobowych. Wysłanie przez Panią / Pana niniejszej informacji jest równoznaczne z wyrażeniem zgody na przetwarzanie danych osobowych. W związku z tym informujemy, że:

    Administratorem danych jest Partners International Sp. z o.o. Pani / Pana dane będą wykorzystane w celu utrzymania możliwości kontaktowania się z Panią / Panem; ma Pani / Pan prawo dostępu do treści danych oraz prawo do ich poprawiania; podanie danych jest dobrowolne.

    Oferty

    Bądź na bieżąco

    Nasze 30-letnie doświadczenie, bogata oferta, obszerna baza Klientów oraz skuteczność pozwoliły nam wpisać się w rynek nieruchomości jako lider wśród agencji zajmujących się obrotem nieruchomościami premium w Warszawie, znany z wyjątkowej obsługi i unikatowych rozwiązań. Dołącz do naszej bazy, aby otrzymywać od nas tylko wyselekcjonowane treści i oferty z naszego portfolio.

    W Partners International świadczymy usługi oparte na zaufaniu – nasi Klienci mogą mieć pewność, że ich dane są przetwarzane w bezpieczny sposób. Informujemy, że umieszczenie przez Partners International informacji o nieruchomości w bazie danych wiąże się z koniecznością przetwarzania Pani / Pana danych osobowych. Wysłanie przez Panią / Pana niniejszej informacji jest równoznaczne z wyrażeniem zgody na przetwarzanie danych osobowych. Dokument Polityki Ochrony Danych Osobowych znajdziesz tutaj.