Gdańsk, Jelitkowo, Bursztynowa

  • Powierzchnia 94
  • Pokoje 4
  • Rok budowy 2019
  • Apartament Na sprzedaż

3 750 000 PLN

39 894 PLN / m²

Gdańsk, Jelitkowo, Bursztynowa

Luksusowy apartament Botanica

LUKSUSOWY APARTAMENT 4-POKOJOWY Z OGRODEM – BOTANICA JELITKOWO

Botanica Jelitkowo | Invest Komfort | 4 pokoje | Prywatny ogródek z dwóch stron | Bliskość morza | 2 miejsca w hali garażowej | Komórka lokatorska

*****

OPIS NIERUCHOMOŚCI:

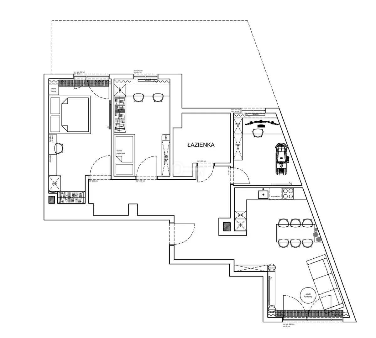
Prezentowany apartament o powierzchni 94,5 m² to wyjątkowa propozycja dla najbardziej wymagających klientów, ceniących luksus, ciszę oraz bliskość natury. Nieruchomość znajduje się na prestiżowym osiedlu Botanica Jelitkowo przy ul. Bursztynowej w Gdańsku – inwestycji renomowanego dewelopera Invest Komfort, znanej z unikatowej architektury harmonijnie wkomponowanej w otaczającą zieleń.

To idealne miejsce dla osób poszukujących prywatnego azylu w mieście, zaledwie kilkanaście minut spacerem od piaszczystej plaży i nadmorskich terenów rekreacyjnych.

ROZKŁAD POMIESZCZEŃ:

Apartament charakteryzuje się bardzo funkcjonalnym i komfortowym układem:
* Pokój dzienny z aneksem kuchennym i wyjściem do prywatnego ogródka,
* reprezentacyjna sypialnia master bedroom z wyjściem do ogródka,
* pokój dziecięcy,
* doskonale zaprojektowany gabinet,
* główna łazienka / pokój kąpielowy,
* przestronny hol z licznymi zabudowami do przechowywania,
* prywatny ogródek z dwóch stron apartamentu zapewnia dodatkową przestrzeń do relaksu oraz poczucie kameralności.

STANDARD:

* Nieruchomość została wykończona z wykorzystaniem najwyższej klasy materiałów oraz wyposażona w markowe sprzęty.
* Elegancka ściana telewizyjna z wielkoformatowych spieków kwarcowych o wzorze marmuru, uzupełniona stylowymi lamelami
* Kuchnia wykonana na wymiar – połączenie naturalnego drewna z nowoczesną, białą zabudową
* Reprezentacyjna sypialnia z wysokim, tapicerowanym zagłówkiem sięgającym sufitu, lustrzanymi panelami oraz drewnianymi detalami
* Stylowa toaletka z okrągłym lustrem oraz przeszklona garderoba
* Wysokiej jakości deska dębowa na podłogach w całym apartamencie
* Nowoczesne oświetlenie liniowe oraz napinany sufit w sypialni podkreślające luksusowy charakter wnętrza

LOKALIZACJA:

Botanica Jelitkowo to kameralne osiedle idealnie wpisujące się w willową zabudowę nadmorskiej części Gdańska.

Inwestycja łączy bliskość morza, plaży, licznych parków i terenów zielonych z doskonałym dostępem do miejskiej infrastruktury. Projekt powstał w oparciu o ideę miasta-ogrodu – z przemyślaną kompozycją zieleni harmonizującą z naturalnym otoczeniem.

Osiedle oferuje wyjątkową przestrzeń wspólną dla mieszkańców, obejmującą:
* Zewnętrzną strefę relaksu,
* Kort tenisowy,
* Boisko wielofunkcyjne,
* Tereny spacerowe z oczkami wodnymi i starannie zaprojektowaną roślinnością.

Duże przeszklenia i powiększone okna zapewniają doskonałe doświetlenie wnętrz oraz widok na otaczającą zieleń.

INFORMACJE DODATKOWE:

* Do nieruchomości przynależą dwa miejsca postojowe w hali garażowej w cenie 200 000 zł.
* Komórka lokatorska o powierzchni ok. 5,7 m²
* Osiedle monitorowane, z całodobowym systemem bezpieczeństwa

Serdecznie zapraszam na prezentację tej wyjątkowej nieruchomości!

Dodatkowe dane
  • Domofon: Tak
  • Wideofon: Tak
  • Kamery wideo: Tak
  • Monitoring: Tak
  • Winda: Tak

Nr oferty: 248040

Przedstawiona wyżej propozycja nie jest ofertą handlową w rozumieniu przepisów prawa lecz ma charakter informacyjny. Partners International Sp. z o.o. dokłada starań, aby treści przedstawione w naszych ofertach były aktualne i rzetelne. Dane dotyczące ofert uzyskano na podstawie oświadczeń sprzedających.

O nieruchomość

Dorota Korycka

Senior Real Estate Advisor

    Informujemy, że umieszczenie przez Partners International informacji o nieruchomości w bazie danych wiąże się z koniecznością przetwarzania Pani / Pana danych osobowych. Wysłanie przez Panią / Pana niniejszej informacji jest równoznaczne z wyrażeniem zgody na przetwarzanie danych osobowych. W związku z tym informujemy, że:

    Administratorem danych jest Partners International Sp. z o.o. Pani / Pana dane będą wykorzystane w celu utrzymania możliwości kontaktowania się z Panią / Panem; ma Pani / Pan prawo dostępu do treści danych oraz prawo do ich poprawiania; podanie danych jest dobrowolne.

    Oferty

    Bądź na bieżąco

    Nasze 30-letnie doświadczenie, bogata oferta, obszerna baza Klientów oraz skuteczność pozwoliły nam wpisać się w rynek nieruchomości jako lider wśród agencji zajmujących się obrotem nieruchomościami premium w Warszawie, znany z wyjątkowej obsługi i unikatowych rozwiązań. Dołącz do naszej bazy, aby otrzymywać od nas tylko wyselekcjonowane treści i oferty z naszego portfolio.

    W Partners International świadczymy usługi oparte na zaufaniu – nasi Klienci mogą mieć pewność, że ich dane są przetwarzane w bezpieczny sposób. Informujemy, że umieszczenie przez Partners International informacji o nieruchomości w bazie danych wiąże się z koniecznością przetwarzania Pani / Pana danych osobowych. Wysłanie przez Panią / Pana niniejszej informacji jest równoznaczne z wyrażeniem zgody na przetwarzanie danych osobowych. Dokument Polityki Ochrony Danych Osobowych znajdziesz tutaj.