Portugalia
Burgau Sea Gardens
KAMERALNE OSIEDLE położone w małej wiosce rybackiej Burgau, w gminie Vila do Bispo, 12 km od Lagos, w samym sercu Parku Narodowego Costa Vicentina.
BURGAU zostało wyróżnione przez czytelników Lonely Planet jako „NAJBARDZIEJ MALOWNICZA WIOSKA NADMORSKA W EUROPIE”.
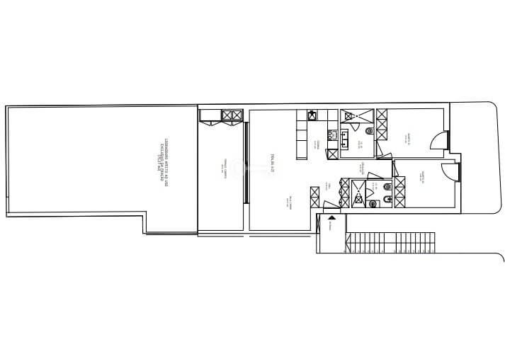
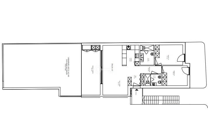
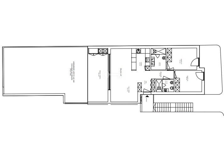
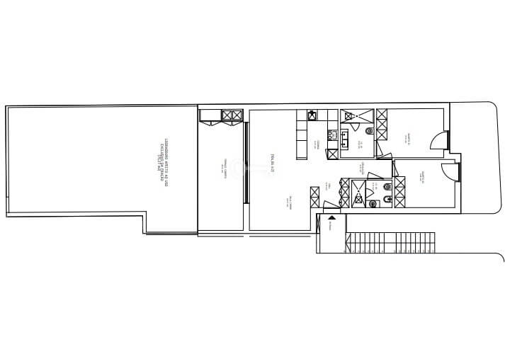
Składa się z trzech, 1 piętrowych budynków i w sumie tylko 32 przestronnych apartamentów z 2 sypialniami, z dużymi balkonami. Apartamenty na parterze będę mogły korzystać z prywatnych ogródków, natomiast te znajdujące się na 1 piętrze do wyłącznej dyspozycji posiadać będą tarasy na dachu. W kompleksie znajdować się będą dwa baseny dla dorosłych i dzieci, siłownia, garaż oraz tereny zielone dla mieszkańców. Jest to idealne miejsce, aby cieszyć się z rodziną i przyjaciółmi fantastycznym klimatem Algarve oraz pięknem Parku Przyrody Costa Vicentina. Wszystkie apartamenty zostaną wykończone 'pod klucz’ i oddawane będą Właścicielom gotowe do wprowadzenia się.
Nie można przyjechać do ALGARVE i się w nim nie zakochać. Ten region Portugalii określany jest jako najlepsze miejsce na świecie do życia lub na emeryturę.
Niesamowite plaże, łagodny klimat i ponad 300 słonecznych dni sprawiają, że Algarve jest idealnym miejscem do zamieszkania przez cały rok.
BURGAU nazywane jest Portugalskim Santorini. Miasteczko charakteryzuje się małymi biało-niebieskimi domami, z których wiele ma zapierający dech w piersiach widok na ocean. Ta mała wioska rybacka, z zaledwie 300 mieszkańcami, pomimo niskiej gęstości zaludnienia, oferuje znaczną liczbę wspaniałych restauracji i barów, w większości z widokiem na wybrzeże.
Największą atrakcją jest plaża w Burgau, ze złocistym piaskiem, skąpana w spokojnych i krystalicznych wodach. Wzdłuż plaży można spotkać małe łodzie rybackie, które nadal używają rzemieślniczych technik połowu ryb.
Ta plaża jest punktem wyjścia na Costa Vicentina. Z Lagos zaledwie 20 minut wzdłuż wybrzeża na wschód i Sagres nieco dalej na zachód, Burgau jest dobrą bazą wypadową do zwiedzania zachodniej części Algarve. Można się tu cieszyć spacerami nad oceanem i wspaniałymi plażami, takimi jak Salema czy Praia da Luz.
Wzmianki historyczne sięgają XVI wieku. Na 3,5 km na zachód od Praia znajduje się mały Fort São Luís de Almádena lub Fort Boca do Rio, zbudowany w 1632 roku i uszkodzony przez trzęsienie ziemi w 1755 roku i całkowicie opuszczony w 1849 roku.
Wioska Burgau jest idealnym punktem wyjścia do zwiedzania Costa Vicentina. Można się tu cieszyć przywilejem życia w naturalnym parku, z przepiękną linią brzegową, która w regionie Algarve rozciąga się aż do wioski Odeceixe. Ta słynna linia brzegowa składa się z najpiękniejszych plaż w Portugalii, chronionych przez majestatyczne klify i otoczonych długimi szlakami z krajobrazem zapierającym dech w piersiach, gdzie przyroda ma silny i dziki charakter.
Burgau jest integralną częścią Parku Przyrody południowo-zachodniego Alentejo i Costa Vicentina, który z ponad 110 km jest najdłuższym obszarem portugalskiego wybrzeża podlegającym ochronie. Obdarzony unikalnym i nietkniętym krajobrazem, zapewnia atrakcje, dla tych którzy szukają różnorodności i dzikiego piękna oraz oferuje niezliczone możliwościami aktywności na świeżym powietrzu.
DLA MIŁOŚNIKÓW SPORTU I AKTYWNOŚCI NA PLENERZE oferuje ocean możliwości.
Jako brama do Parku Przyrody Costa Vicentina, region Lagos łączy fantastyczne plaże z niesamowitymi warunkami do surfowania, żeglowania, nurkowania, wędkowania i innych sportów wodnych.
Jednym z najbardziej uderzających naturalnych zakątków parku jest Cabo de São Vicente, najbardziej wysunięty na południowy zachód punkt Europy kontynentalnej, święte miejsce nazywane przez starożytnych finisterra, miejsce, w którym kończy się świat i zaczyna morze.
Na obrzeżach Lagos znajduje się rozległa sieć szlaków, z których wiele wychodzi na ocean, łącząc lokalne plaże z systemem szlaków Via Algarviana, który biegnie od granicy z Hiszpanią do Cabo de São Vicente.
Nr oferty: 21978
Przedstawiona wyżej propozycja nie jest ofertą handlową w rozumieniu przepisów prawa lecz ma charakter informacyjny. Partners International Sp. z o.o. dokłada starań, aby treści przedstawione w naszych ofertach były aktualne i rzetelne. Dane dotyczące ofert uzyskano na podstawie oświadczeń sprzedających.























































